Description
New Build – Ready May 1st 2026
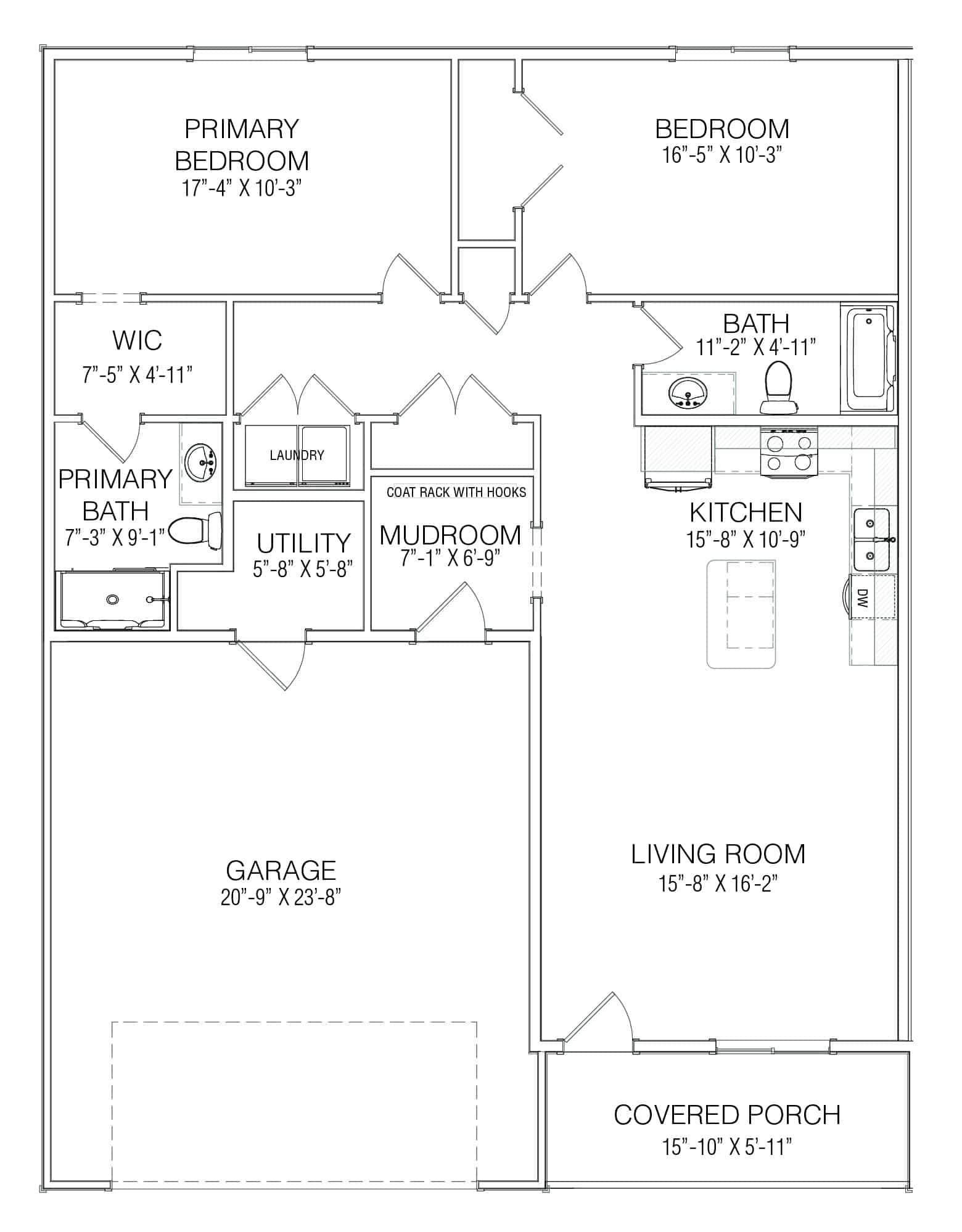
2 bedroom, 2 bathroom, single level home includes a double, attached garage!
2 bedroom, 2 bathroom, single level home includes a double, attached garage!
This gorgeous home welcomes you into the timeless kitchen showcasing quartz countertops, custom cabinetry, and stainless appliances; stove/oven, refrigerator, microwave and dishwasher. Supplied with it’s own washer and dryer and central air, this home really comes with all the bells and whistles and is located on the western edge of Volga.
Call or text 605-695-5261 to schedule a showing or with any questions.
Available May 1st 2026
Rent: $1,500
Deposit: $1,500
Sqft: 1,274
Utilities Included: None
Lease length: 12 Months
Laundry: In-unit
A/C: Central Air
Garage: Attached Double
Parking: Driveway
Pets: Small negotiable
Lawn Care: Provided
Snow Removal: Provided
